空室情報vacancy information
RT白川ビル
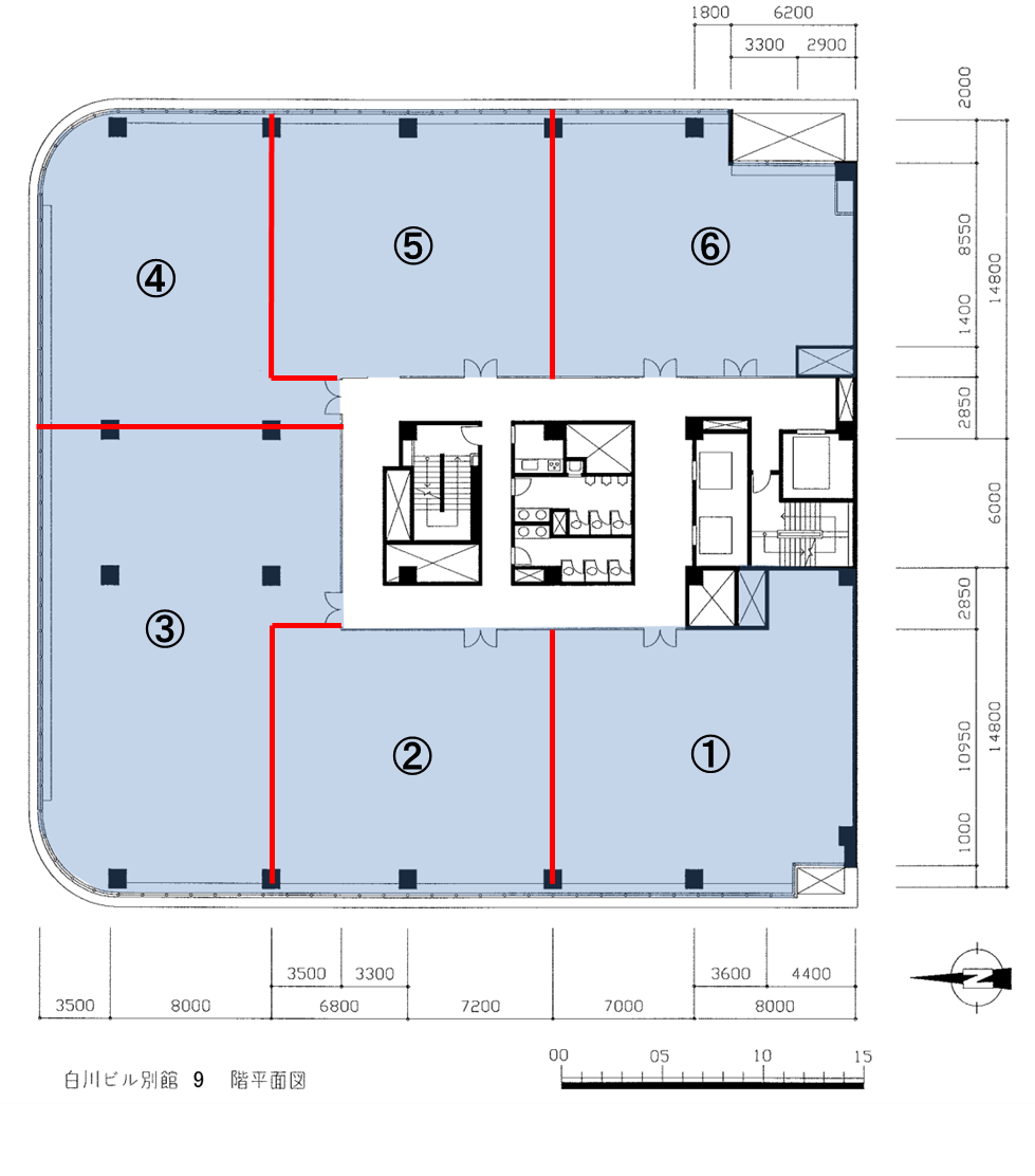
- 賃貸フロア
- 1~9階
- 面積
- 24坪~346坪
- 用途
- 事務所
- 賃料(税別)
- 応相談
- 敷金
- 12ヶ月
- 入居可能日
- 2026年12月1日以降

物件基本情報
- 所在地
- 名古屋市中区栄2-6-1
- 用途
- 事務所
- 最寄り駅
- 名古屋市営地下鉄東山線・鶴舞線
伏見駅徒歩6分
名古屋市営地下鉄東山線・名城線
栄駅徒歩9分
- 規模
- 地上9階/地下2階
- 耐震基準
- 新耐震基準
- 構造
- 鉄骨鉄筋コンクリート造
- 竣工年月
- 1989年10月
- 基準階面積(坪)
- 348.0坪
- エレベーター
- 乗用2台/人荷用1台
- 駐車場
自走式駐車場 68台
- 駐輪場
- あり
- 特筆事項
- 機械警備/集中空調24時間使用可能/OAフロア/光ファイバー/公開空地/ 1~9階共用部・専有部フリーWIFI利用可/ 貸会議室4部屋(定員6~39名)






